Über das Projekt:
Zum Verkauf steht ein 348m² großes Grundstück mit einer Baugenehmigung für die Errichtung von 2 Doppelhaushälften mit jeweils einer Terrasse und 2 Stellplätzen pro Haus.
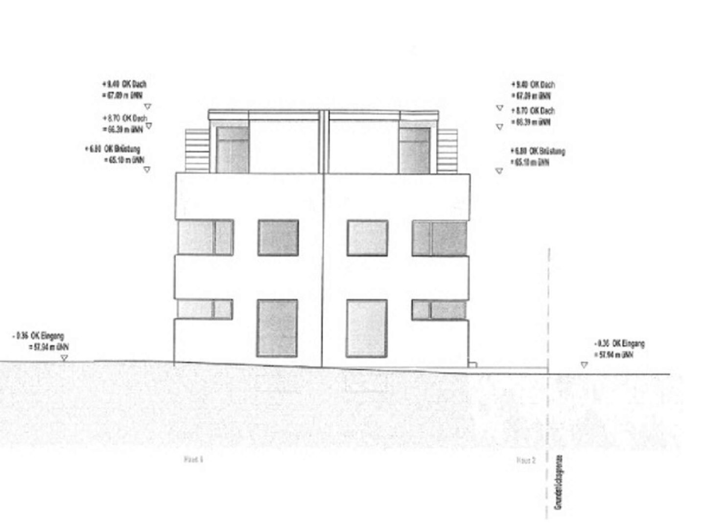
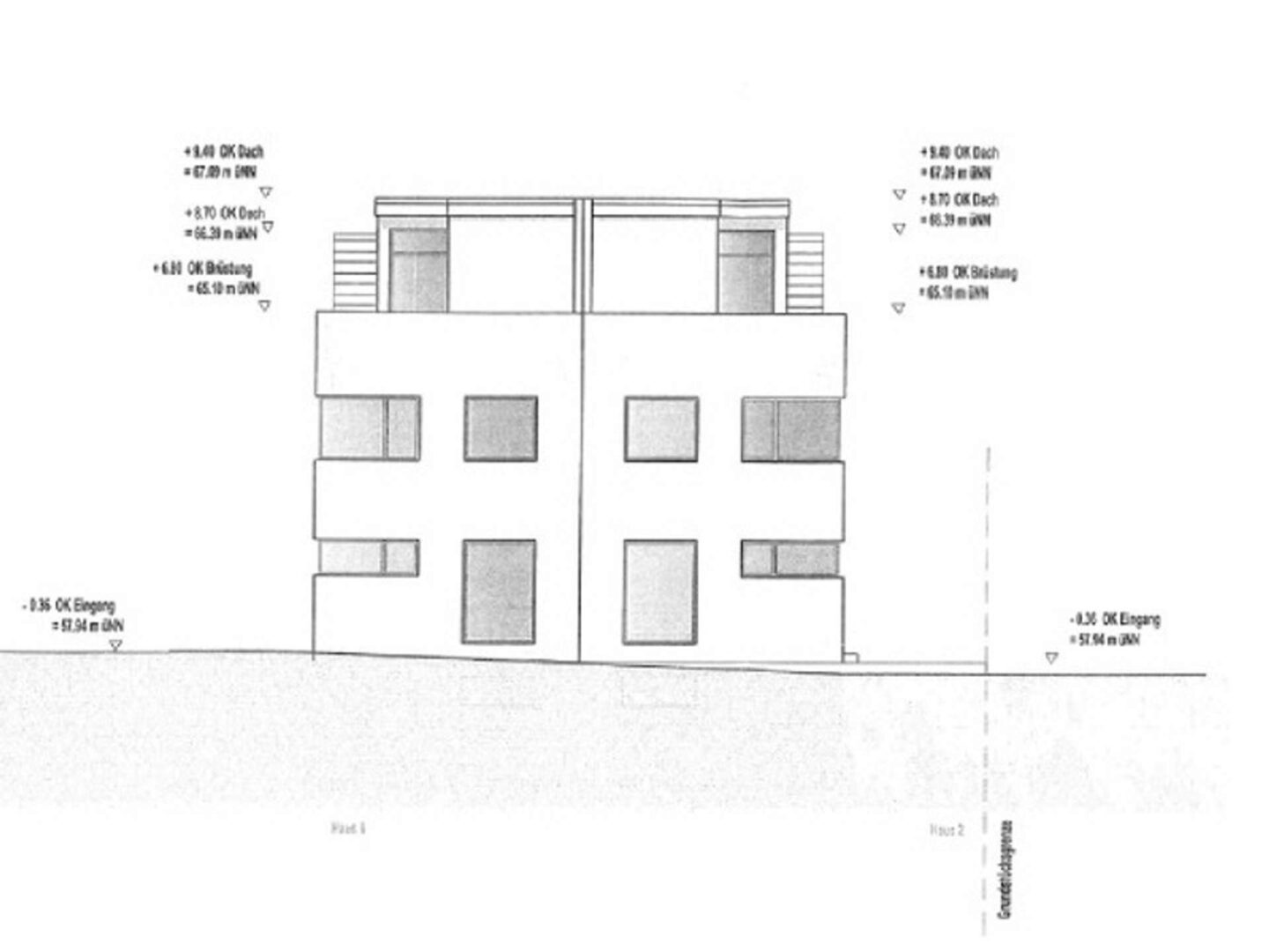
Diese Doppelhaushälften kombinieren zeitgemäße Architektur und modernste Wohnstandards mit der Idylle und dem Charme eines traditionellen Dorfes. Die Grundstücksfläche beträgt pro Haus 174 Quadratmeter, bietet eine großzügige Wohnfläche von ca. 142,5 Quadratmetern und ist für Menschen geschaffen, die Komfort, Qualität schätzen, aber keinen großen Wert auf einen großen Garten legen.
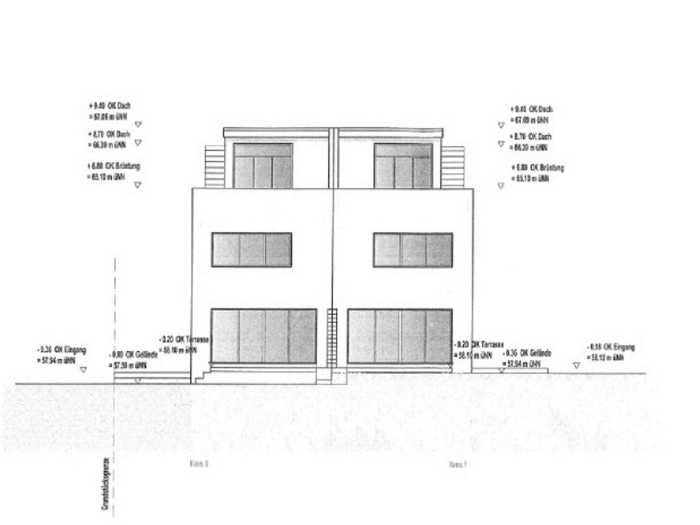
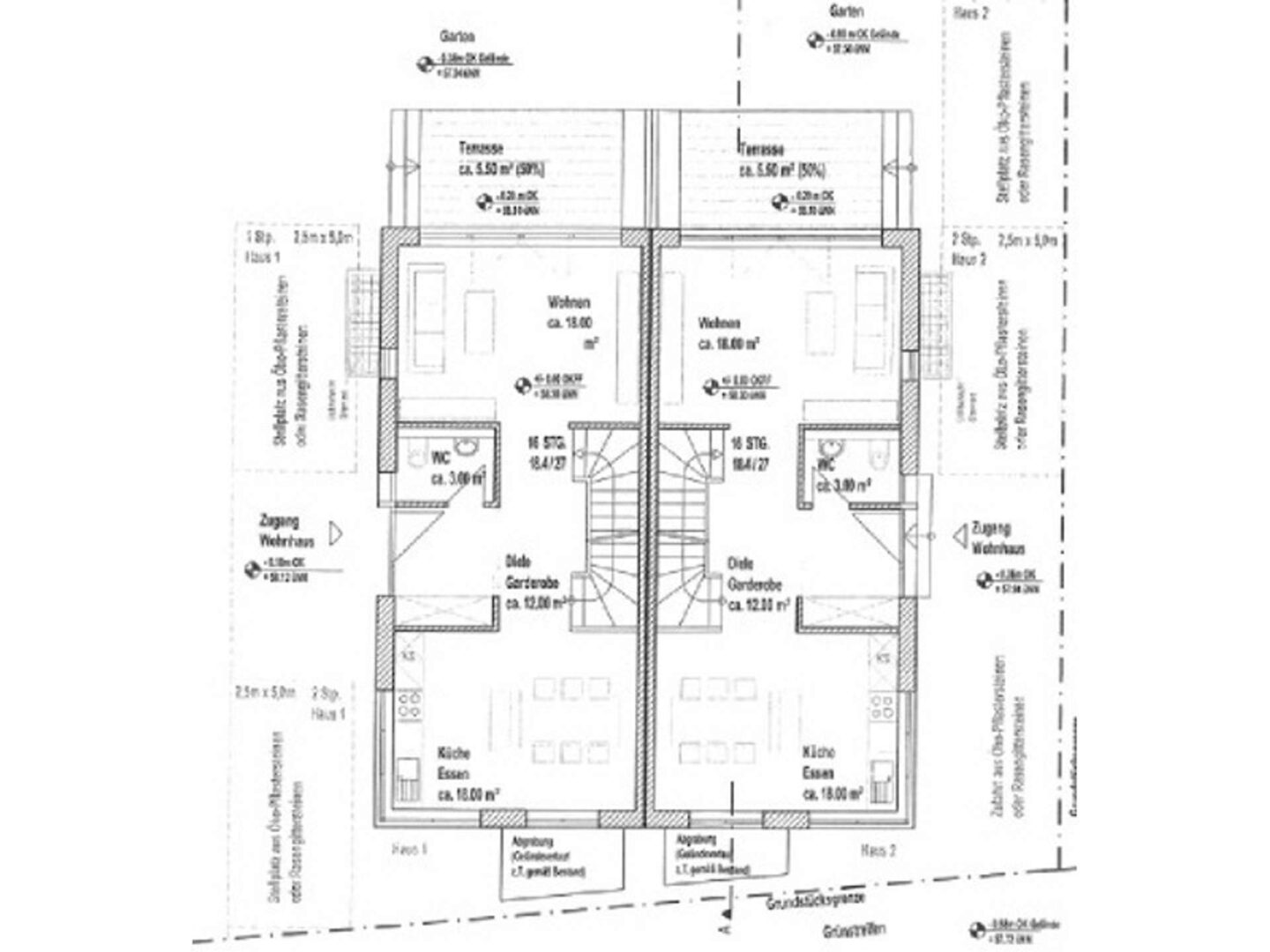
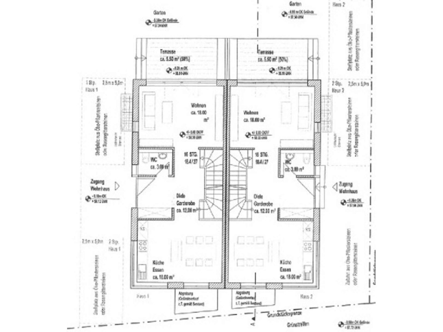
Mit einer großzügigen Terrasse zum Garten und 2 Dachterrassen bietet jedes der Häuser einen hervorragenden Ort für Entspannung und Genuss im Freien. Die tatsächliche Fläche der Terrassen beträgt insgesamt 29m², wovon 50% in die Wohnflächenberechnung einfließt.
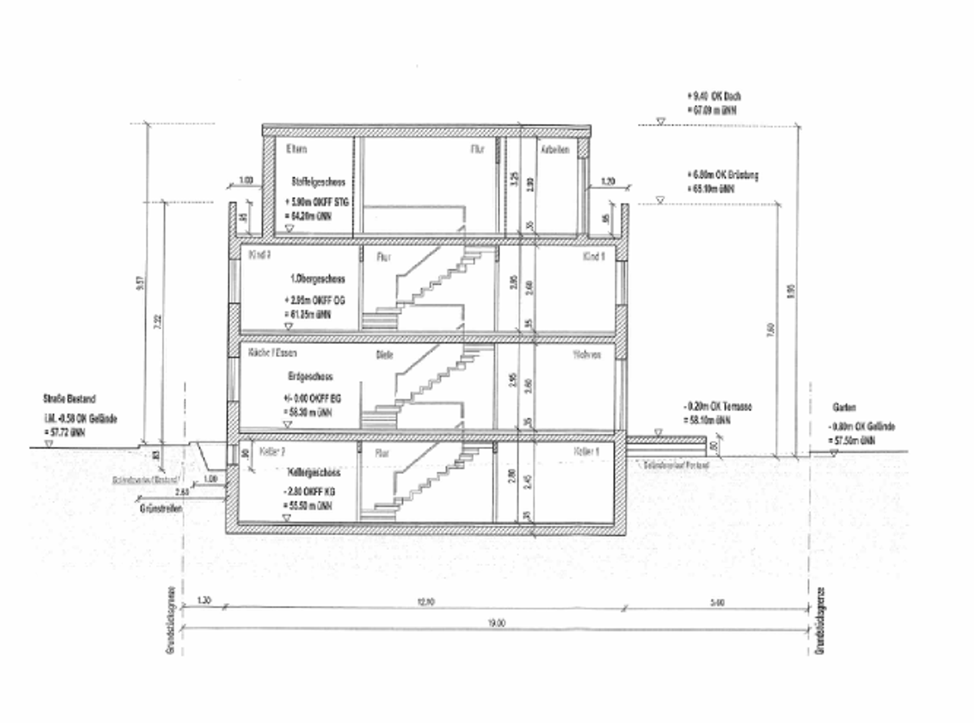
Jedes Haus erstreckt sich über zwei volle Etagen und einen Staffelgeschoss und bietet genügenden Spielraum für jedes Familienmitglied.
Ein Blick in das Innere enthüllt die sorgfältige Planung und das hohe Maß an Begeisterung für Details.
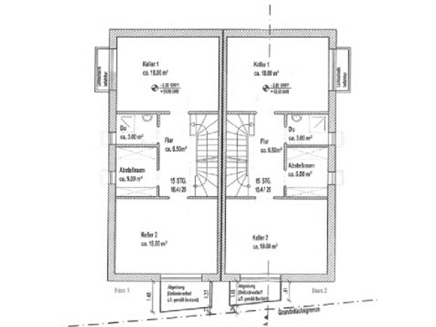
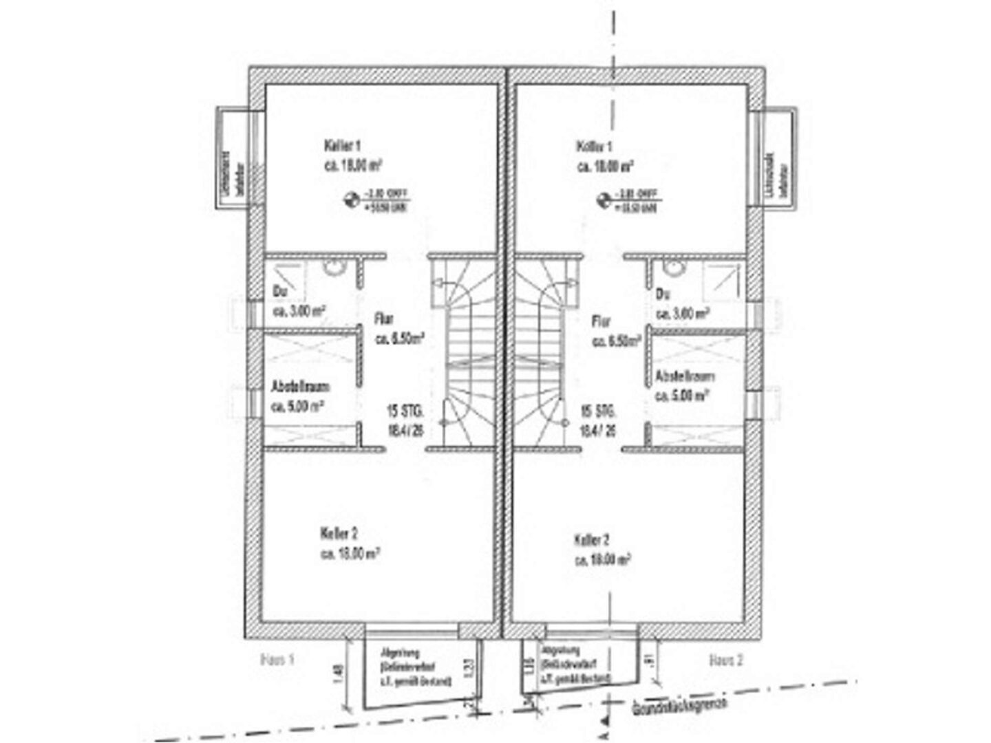
Die Gesamtnutzfläche pro Haus beträgt 194 m² und ist folgendermaßen aufgeteilt:
EG: Küche/ Essen, Wohnzimmer, WC, Diele & Garderobe (56,50m²)
1. OG: 2 Kinderzimmer , Wannenbad mit Dusche und WC, Flur (48m²)
Staffel: Elternschlafzimmer, Arbeitszimmer, Duschbad mit WC, Flur, 2 Dachterrassen (38m²)
Keller: Keller 1, Keller 2 mit Fenster, Abstellraum, Duschbad mit WC, Flur (50,5m²)
Auch bei der Energieeffizienz bleiben keine Wünsche offen: mit KfW 55 bieten diese Häuser höchsten Standard. Die massive Bauweise wird durch ein Staffelgeschoss mit Attika abgerundet und sorgt für Stabilität und Langlebigkeit. Hinzu kommen elektrische Rollläden, hochwertige Fassadendämmung und eine Wärmepumpe, die sowohl für höchsten Komfort als auch für eine hohe Energieeffizienz sorgen.
Des Weiteren besteht die Option auf einen Smarthome-Anschluss (exklusive), der das Wohnen in diesen Häusern noch bequemer und effizienter gestaltet.
Die Bodenbeläge sind nach Bemusterung wählbar.
Für Ihre Pkws stehen 2 Stellplätze auf jedem Grundstück zur Verfügung.
Sie können das Grundstück erwerben und selbst bauen, oder einen GU beauftragen.
Der Kaufpreis pro Haus inklusive Grundstück beträgt also 560.000€ und für diesen Preis erhalten Sie nicht nur ein wunderschönes Haus, sondern auch einen nachhaltigen Wert für die Zukunft.
Der Baubeginn dieser traumhaften Immobilie startet im Frühling 2025.
Sofern Sie sich für gehobene Wohnkultur und einzigartige Architektur begeistern, freuen wir uns darauf, Ihnen dieses Juwel vorstellen zu dürfen.
Dieses Grundstück können Sie ab sofort erwerben und sich Ihr Traumhaus bauen lassen.
Die Zahlung erfolgt in nach Baufortschritt, gem. MaBV. Es bietet Ihnen ein harmonisches Lebensumfeld, in dem Sie und Ihre Familie viele glückliche Jahre verbringen können. Lassen Sie sich diese Chance nicht entgehen - wir freuen uns auf Ihre Anfrage!

















